| штат: | |
|---|---|
| Количество: | |
Ответ: «Привет, можете ли вы поставить только 10 трубок перегревателя по нашему чертежу в качестве запасной части?»
Б: «Конечно, мы можем изготовить по вашему чертежу и в соответствии с вашими требованиями».
Ответ: «Какой материал вы выберете для изготовления?» трубка супернагревателя?»
Б: «Материал, который мы обычно выбираем, например, 15CrMoG, 12Cr1MoVG, SA213-T12, SA213-T11,
СА210-А1.»
Ответ: «Любой материал, который мы можем выбрать на основе вашей поставки, в любом количестве, которое мы хотим?»
Б: «Извините, если количество меньше, как вы сказали, 10 штук змеевиков перегревателя, мы можем только выбрать.
материал, широко используемый в Китае, например, 15CrMoG и 12CrMoVG».
Ответ: «Как насчет вашего комплекта поставки? В него будет входить зажим для трубы или нет?»
Б: «Мы поставим трубку пароперегревателя с зажимом для трубы и опорной пластиной».
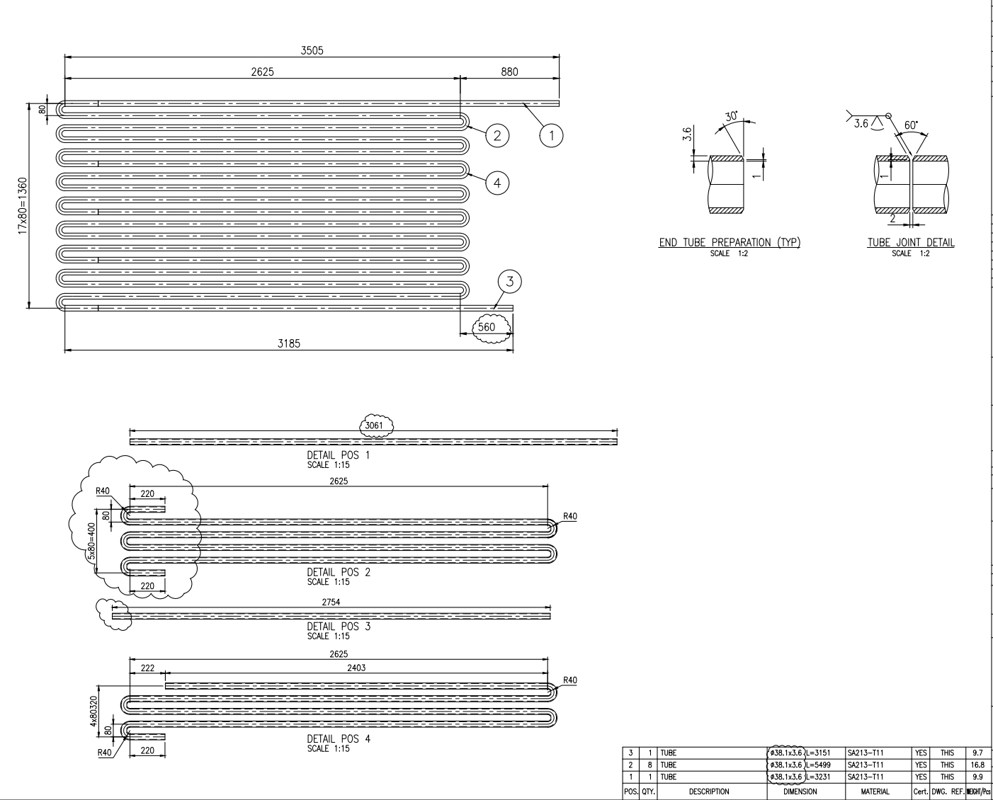
Чертеж образца заказа на изготовление:

Ответ: «Привет, можете ли вы поставить только 10 трубок перегревателя по нашему чертежу в качестве запасной части?»
Б: «Конечно, мы можем изготовить по вашему чертежу и в соответствии с вашими требованиями».
Ответ: «Какой материал вы выберете для изготовления?» трубка супернагревателя?»
Б: «Материал, который мы обычно выбираем, например, 15CrMoG, 12Cr1MoVG, SA213-T12, SA213-T11,
СА210-А1.»
Ответ: «Любой материал, который мы можем выбрать на основе вашей поставки, в любом количестве, которое мы хотим?»
Б: «Извините, если количество меньше, как вы сказали, 10 штук змеевиков перегревателя, мы можем только выбрать.
материал, широко используемый в Китае, например, 15CrMoG и 12CrMoVG».
Ответ: «Как насчет вашего комплекта поставки? В него будет входить зажим для трубы или нет?»
Б: «Мы поставим трубку пароперегревателя с зажимом для трубы и опорной пластиной».
Чертеж образца заказа на изготовление:

Телефон: +86-532-82661521, 1522
+86 13730919470
Электронная почта: vera_yang@sinopowersd.cn
Вацап: +86 13730919470